122 Goodwin Place
Offered at: $580,000
MLS®: A2280574
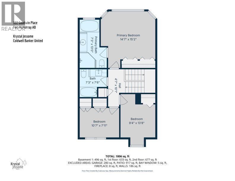
Welcome to 122 Goodwin Place, a truly one of a kind home in Fort McMurray, perfectly tucked away on a quiet corner lot in Grayling Terrace with breathtaking, unobstructed views of the Hangingstone River. From the moment you arrive, the stunning curb appeal and picturesque hillside backdrop set the tone for what awaits inside. The open concept main floor is designed to impress, featuring a beautifully appointed kitchen with ceiling height cabinetry, quartz countertops, ample storage, and a raised island with a cleverly hidden slide out table that comfortably seats six. The living room is anchored by a wall of windows that perfectly frame the incredible south facing views and flood the space with natural light, while a cozy wood burning fireplace surrounded by custom built-ins creates a warm and inviting atmosphere. A convenient half bath completes the main level. Upstairs, the primary retreat is positioned at the back of the home to fully capture the stunning river views and offers a luxurious ensuite complete with in-floor heat, a heated towel rack, jet tub, and a corner glass jetted shower. Two additional bedrooms, a second full bathroom, and extra storage complete this level. The fully developed basement offers a comfortable family room with a natural gas fireplace, built-in surround sound, and a fourth bedroom/office space/den, along with the added convenience of a dedicated pet wash station. Step outside and imagine spending your summers entertaining on the large back deck, surrounded by brick lined gardens and the serenity of having no backing neighbours. Only the peaceful sights and sounds of the river flowing behind you. Walking trails along the river invite evening strolls and outdoor enjoyment, while the attached garage provides additional storage and parking. This home features no carpet throughout, gorgeous cherry wood flooring, solid doors, rich wood trim, and timeless character you’ll never forget. On top of all this, this home is tucked away in the qu iet community of Grayling Terrace, a neighbourhood that brings you back in time where neighbours start their mornings with a friendly wave and a “have a good day.” This property is perfectly suited for a working couple or a growing family, with the added bonus of a nearby park and splash park just minutes away. This exceptional home offers privacy, charm, and lifestyle in a peaceful cul-de-sac setting. This opportunity that truly doesn’t come along often. Don’t miss your chance to book your private showing today. (id:6769)
Quick Stats
Key Home Data
3
BATH(S)
4
BED(S)
1417
SQFT
YES
SHOWING AVAILABLE
Property Type:
Single Family Home Ownership:
Freehold
Payment Calculator
Calculate your monthly mortgage payment.
Mortgage Amount
$
Amortization
years
Payment Freq.
Interest Rate
%
Calculating...
All About the Details
See specific details below.
Neighbourhood Statistics
Get to know your neighbourhood.

